about me
(interactive) media
residential
commercial
project library
contact
about me
(interactive) media
residential
commercial
project library
contact
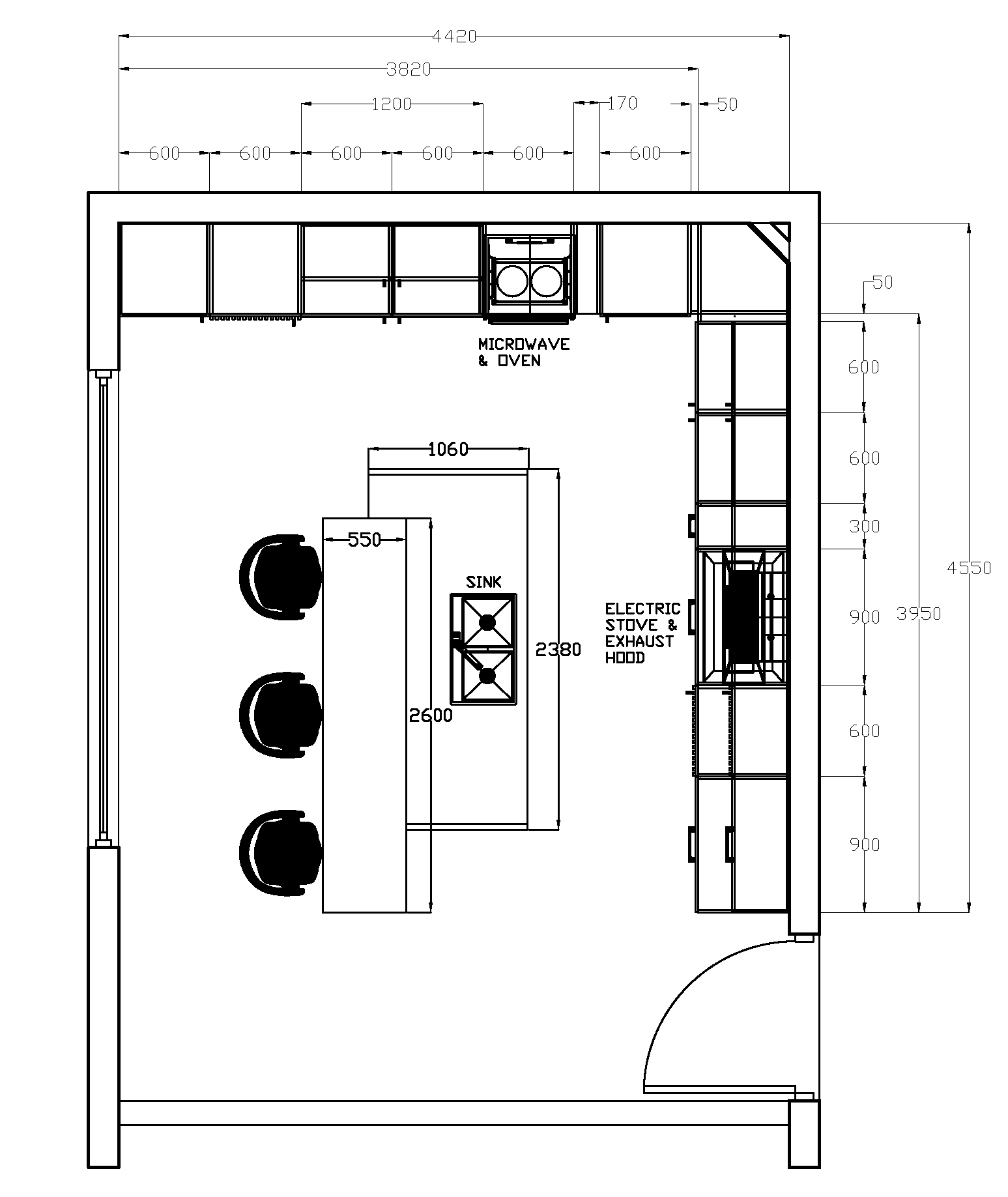
Contemporary Kitchen
Company: Yas Holding
The client opted for a contemporary style kitchen with lots of storage units and a neutral color scheme.
Moodboard contents: white marble, oak veneer and dark grey painted wood
Floor plan of the kitchen
You may also like
I Feel Like My Painting
Empower Her Return
MA Thesis Project
Contemporary Bedroom
COMPANY: YAS HOLDING
Iskan House
Company: Fatima Alansari Design & Execution
Oblivion: Space Exploration Centre
Technologically Advanced (Senior Graduation Project)
Dual Care
Living Room
company: Fatima Alansari Design & Execution
Furniture Showroom, Bahrain
General
This Photograph Talks
↑
Back to Top