The store's design is conceived as a contemporary showcase of craftsmanship, where transparency, symmetry, and material honesty define the spatial experience.
The material palette draws from the raw essence of leather such as woods, natural textures, and neutral surfaces, as well as contrasting it with glass and refined lighting to create a dialogue between tradition and modernity.
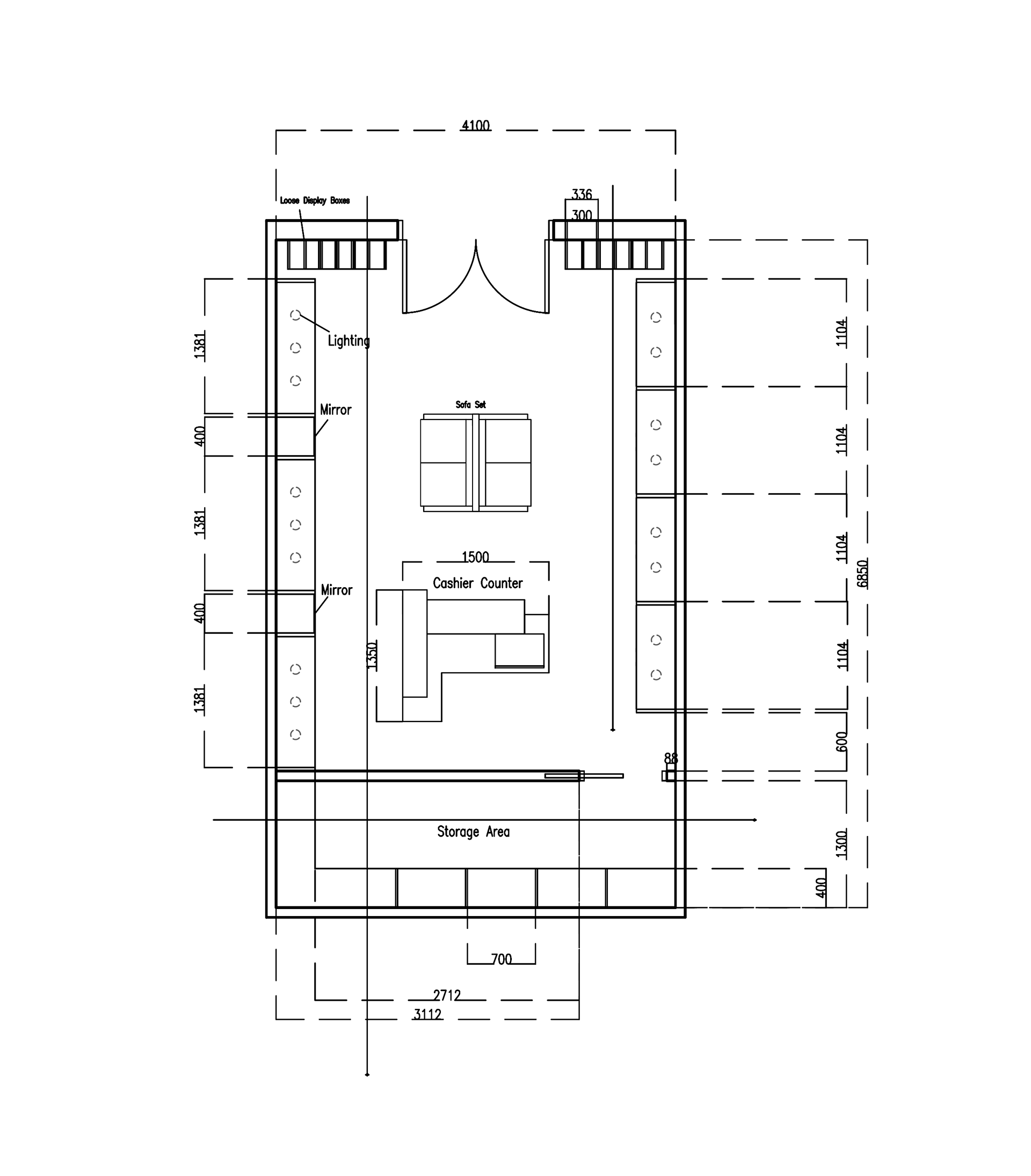
Floor plan
Floor plan
Elevation
Elevation
Ceiling plan
Ceiling plan
Counter furniture details
Counter furniture details
It is conceived as a gallery-like setting, where clean white surfaces act as a neutral canvas, elevating each leather piece as a curated object of craftsmanship. Achieved within a tight budget, the design avoids excess, relying instead on simplicity and a carefully controlled visual rhythm that reflects the quietness of the brand.

You may also like

Back to Top