The client opted for a really simple yet luxurious style for the design of a new fashion brand for genuine leather to match the elegance of the brand quality, identity and products they are exposing to the market. The brand's concept seeks beauty and luxury in simplicity, and so the concept behind the interior design was done by following the same footsteps.

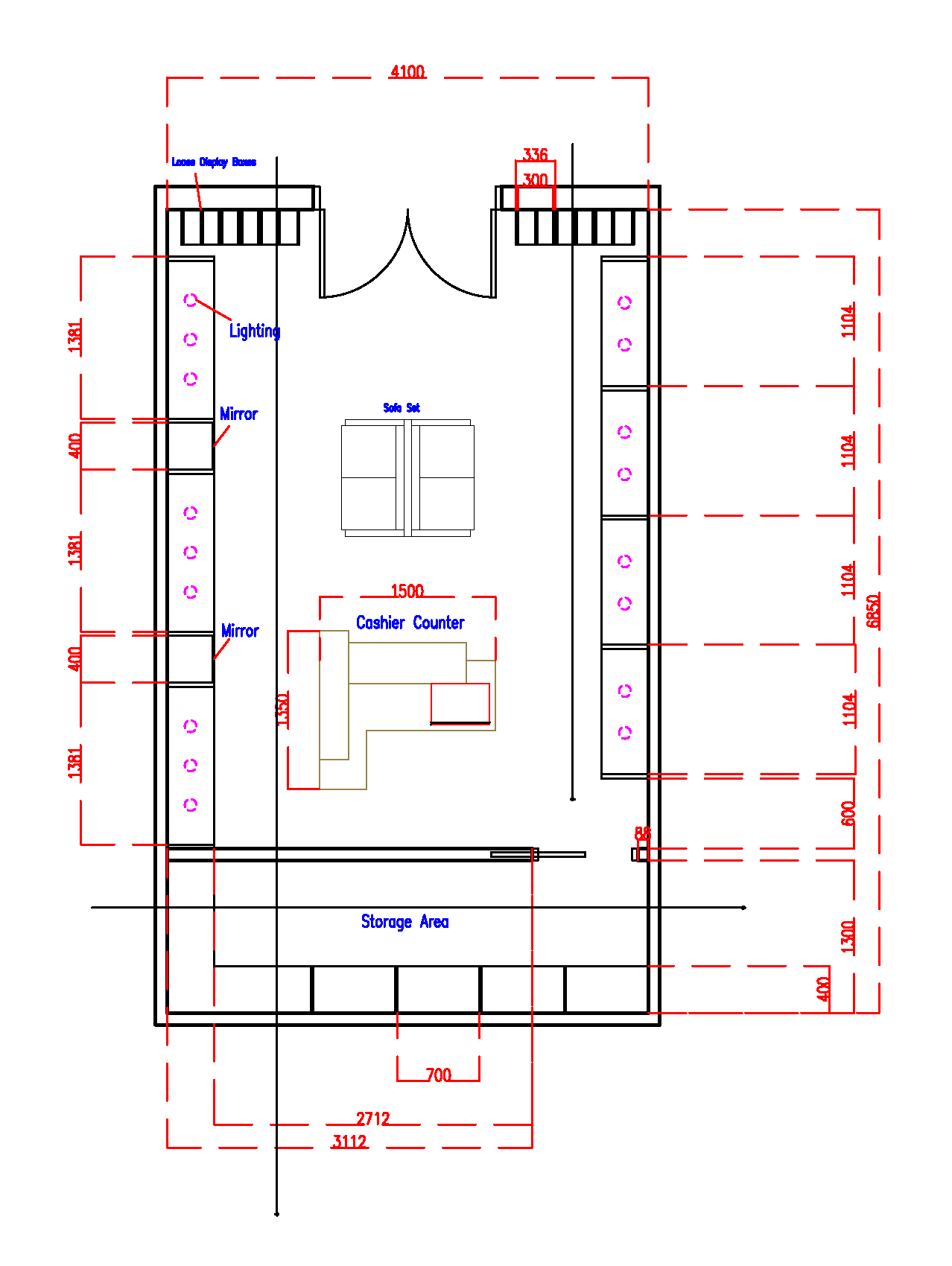
Floor plan

Sectional Elevation

Store Front X-ray View





A soft-opening invitation was also created based upon the client's request:
